
Downtobid is building AI to understand construction blueprints. Our first product is a modern bidding tool equipped with an AI assistant to make bidding faster.
Construction blueprints are very difficult to read and understand, which makes bidding slow and expensive for construction teams. Bidding is the process of getting a set of blueprints and reaching out to subcontractors to get prices on each scope of work (e.g., drywall, electrical, mechanical), then compiling these quotes into a single estimated price for the project.
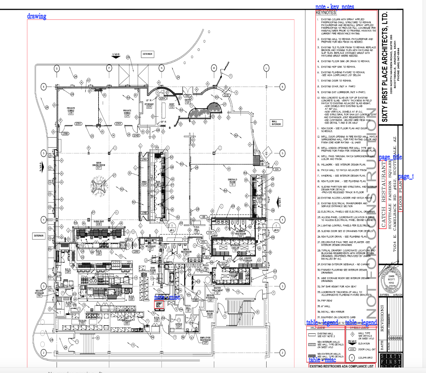
For example, here's a 474-page PDF for a new wellness center (a medium size project). A general contractor needs to understand all the intricate details of this project in order to price it effectively.
Every page contains a lot of information about materials that need to be purchased (e.g., which walls should be added, and specifications for the lighting system).
Downtobid is an all-in-one bidding tool equipped with an AI assistant that streamlines every part of the bidding process for general contractors, from understanding the construction plans to reaching out to vendors.
Today, GCs spend 2-3 hours per project reading large construction documents to figure out what vendors they need to get quotes from. With Downtobid, GCs simply upload a set of plans and AI instantly calls out which scopes of work are required and highlights them on the actual set of plans. Rather than read blueprints raw, GCs get an annotated version with all important info called out.
Today, GCs need to build custom subcontractor lists based on their project requirements. Not every subcontractor is a good fit for the project (e.g. you wouldn't invite a wood-flooring sub to a building that requires carpet flooring). With Downtobid, AI auto-recommends a list of subs based on their expertise, experience, and project requirements.
AI orchestrates the outreach process
Today, GCs have to send emails, set up Dropbox links (to host their plans), and send follow-up emails. With Downtobid, AI prepares your email campaign and automatically follows up with subcontractors when they don't respond. A GC simply needs to respond to emails in their inbox and wait for proposals to come back.
Long-term vision
Our long-term plan is to create intelligent AI that can understand and interpret construction blueprints. We started with bidding has the lowest requirements for AI so it's the quickest way to market. As the AI for construction gets more intelligent, we'll be able to handle more and more construction workflows. For example, we’re starting to annotate plans so LLMs can better understand the structure of construction blueprints.
Team
We spent the last 5 years working together on another bidding product (for subs) called BasisBoard. Previously, Andy worked at Uber on self-driving cars, and Kev worked at Boston Consulting Group as a designer.
Ask
We'd love intros to general contractors, especially those who are building retail projects (e.g., Walmart, Lululemon, Dior, McDonald's, etc.). You can even direct them to our website to try our AI on a set of their construction plans for free.